アイ・マークタワー
- 所在地 東京都中央区月島1丁目
- 交通 東京メトロ有楽町線「月島」駅より徒歩1分
- 階数 地下2階付き地上32階建て
- 築年月 平成15年8月
-
本物件の最新情報を知りたい方
本物件の販売情報を優先的にお知らせいたします。
ご希望の方はお申し込みください。
-
売却・買取など相談したい方
マンションの売却や買取をはじめ、
リフォームなどに関するご相談を承ります。
- お電話でのお問い合わせ
-
-
受付時間
10:00~18:00
-
定休日
火・水曜日 (祝日除く)
物件概要
-
-
駅情報
「月島」駅 徒歩1分
-
沿線情報
東京メトロ有楽町線・都営大江戸線「月島」駅
-
所在地
東京都中央区月島1-8-1
-
総戸数
358戸
-
築年月
平成15年8月
-
管理会社
株式会社ライフポート西洋
-
-
-
土地種別
所有権
-
用途地域
商業地域
-
構造
鉄筋コンクリート造、地下2階付き地上32階建て
-
分譲会社
日本新都市開発・ニューシティコーポレーション
-
施工会社
大林組・青木建設
-
管理形態
全部委託・常駐
-
アクセスマップ
販売中物件
1件
-
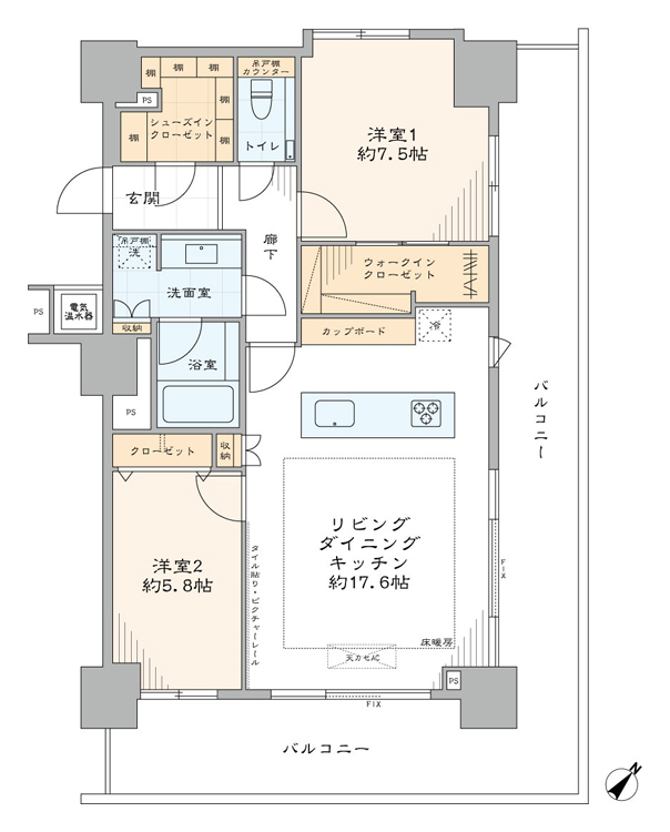
013階 / 2LDK+WIC(77.48㎡) / 15,990万円詳細を見る閉じる
- 2026年2月リノベーション完了
- 南東・北東角住戸
- 床暖房
- 食洗機
- WIC・SIC
- ペット飼育可能(細則あり)
物件概要
-
-
物件種目
中古マンション
-
販売価格
15,990万円
-
所在地
東京都中央区月島1-8-1
-
土地種別
所有権
-
用途地域
商業地域
-
専有面積
77.48㎡
-
バルコニー面積
31.02㎡
-
向き
南東向き
-
間取り
2LDK
-
所在階
3階
-
管理費/月
23,200円
-
-
-
修繕積立金/月
16,000円
-
その他費用
インターネット使用料/2,000円(月額)
-
引渡日
即可
-
現況
空室
-
媒体形態
仲介
-
情報更新日
2026/04/16
-
次回更新予定日
2026/04/30
-
備考
-
広告主
株式会社グローバル住販 〒163-0818 東京都新宿区西新宿2-4-1新宿NSビル18F 東京都知事(6)第77167号 (一社)全国住宅産業協会会員 (公社)全日本不動産協会会員 (公社)不動産保証協会会員 (一社)不動産流通経営協会会員 (公社)首都圏不動産公正取引協議会加盟
-
閉じる
- ※各種掲載情報と差異がある場合は現況優先となります。
- ※掲載の距離は現地所在棟のエントランスからの距離を示したもので、徒歩分数は80mを1分として算出(端数切り上げ)した概算時間です。
- ※掲載の電車等所要時間は通勤時の時間のもので、時間帯によって異なります。尚、所要時間については乗り換え、待ち合わせ時間を含みます。
- ※掲載物件は、掲載中に売却済、売出中止あるいは価格変更となる場合があります。(オープンルーム対象物件に関しては、開催中止や延期となる場合があります。)
- ※掲載写真に写っている眺望は将来に渡って保証するものではありません。また、周辺施設や周辺環境の写真は過去に撮影したものをそのまま利用している場合があり、名称・外観・背景等、実際のものとは異なる場合がございます。
- ※仲介物件には所定の仲介手数料(消費税相当額を含みます)が必要です。
- ※地図上に表示される物件の位置は付近住所に所在することを表すものであり、実際の物件とは異なる場合がございます。
















