ライオンズステージ門前仲町冬木
- 所在地 東京都江東区冬木
- 交通 大江戸線・東西線「門前仲町」駅より徒歩7分
- 階数 地上10階建て
- 築年月 2002年2月
-
本物件の最新情報を知りたい方
本物件の販売情報を優先的にお知らせいたします。
ご希望の方はお申し込みください。
-
売却・買取など相談したい方
マンションの売却や買取をはじめ、
リフォームなどに関するご相談を承ります。
- お電話でのお問い合わせ
-
-
受付時間
10:00~18:00
-
定休日
火・水曜日 (祝日除く)
物件概要
-
-
駅情報
「門前仲町」駅 徒歩7分
「清澄白河」駅 徒歩13分 -
沿線情報
都営大江戸線・東京メトロ東西線「門前仲町」駅
東京メトロ半蔵門線「清澄白河」駅 -
所在地
東京都江東区冬木10‐10
-
総戸数
103戸
-
築年月
2002年2月
-
管理会社
株式会社大京アステージ
-
-
-
土地種別
所有権
-
用途地域
準工業地域
-
構造
鉄骨鉄筋コンクリート造・鉄筋コンクリート造、地上10階建て
-
分譲会社
株式会社大京
-
施工会社
株式会社熊谷組
-
管理形態
全部委託・日勤
-
アクセスマップ
販売中物件
1件
-
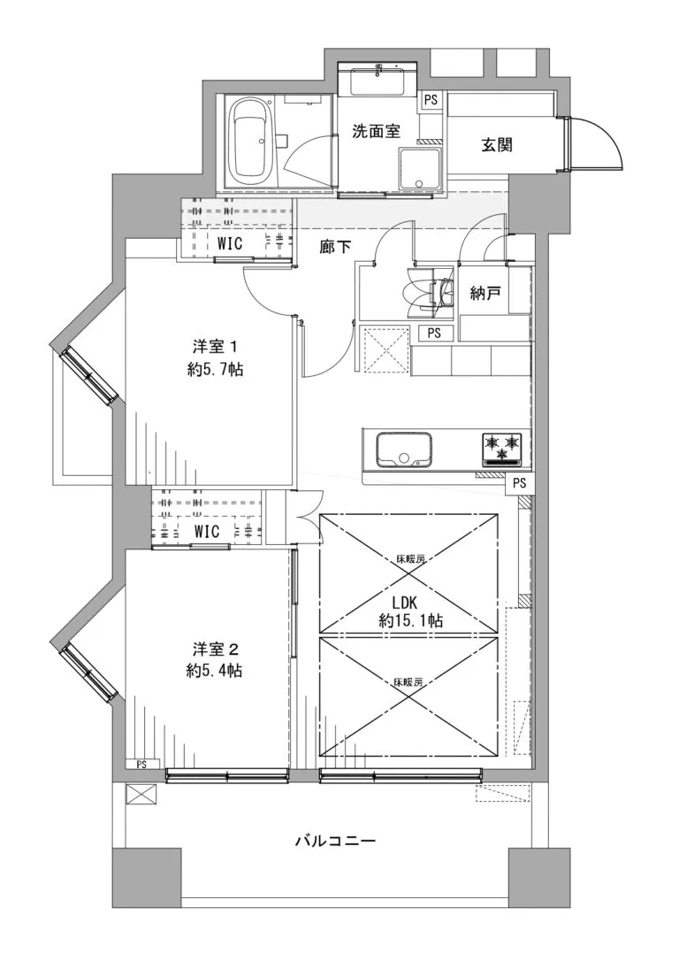
012階 / 2LDK+2WIC(67.86㎡) / 11,500万円詳細を見る閉じる
- 2駅3路線利用可能
- 閑静な住環境
- アウトフレーム工法・逆梁工法
- 南西向き角住戸
- 床暖房・食洗器付きシステムキッチン・浴室乾燥機・エアコン・温水洗浄便座など新規設置
- WIC、カップボード、玄関収納など収納スペース充実
- 新耐震基準適合マンション・全部委託管理
- ペット飼育可
- 宅配ボックス完備
- オートロック
物件概要
-
-
物件種目
中古マンション
-
販売価格
11,500万円
-
所在地
東京都江東区冬木10‐10
-
土地種別
所有権
-
用途地域
準工業地域
-
専有面積
67.86㎡
-
バルコニー面積
9.42m²
-
向き
南西向き
-
間取り
2LDK+2WIC
-
所在階
2階
-
管理費/月
13,700円
-
-
-
修繕積立金/月
15,340円
-
その他費用
-
引渡日
即可
-
現況
空室
-
媒体形態
仲介
-
情報更新日
2026/04/29
-
次回更新予定日
2026/05/13
-
備考
-
広告主
株式会社グローバル住販 〒163-0818 東京都新宿区西新宿2-4-1新宿NSビル18F 東京都知事(6)第77167号 (一社)全国住宅産業協会会員 (公社)全日本不動産協会会員 (公社)不動産保証協会会員 (一社)不動産流通経営協会会員 (公社)首都圏不動産公正取引協議会加盟
-
閉じる
- ※各種掲載情報と差異がある場合は現況優先となります。
- ※掲載の距離は現地所在棟のエントランスからの距離を示したもので、徒歩分数は80mを1分として算出(端数切り上げ)した概算時間です。
- ※掲載の電車等所要時間は通勤時の時間のもので、時間帯によって異なります。尚、所要時間については乗り換え、待ち合わせ時間を含みます。
- ※掲載物件は、掲載中に売却済、売出中止あるいは価格変更となる場合があります。(オープンルーム対象物件に関しては、開催中止や延期となる場合があります。)
- ※掲載写真に写っている眺望は将来に渡って保証するものではありません。また、周辺施設や周辺環境の写真は過去に撮影したものをそのまま利用している場合があり、名称・外観・背景等、実際のものとは異なる場合がございます。
- ※仲介物件には所定の仲介手数料(消費税相当額を含みます)が必要です。
- ※地図上に表示される物件の位置は付近住所に所在することを表すものであり、実際の物件とは異なる場合がございます。

















